Размер шрифта
Цвет фона и шрифта
Изображения
Озвучивание текста
Обычная версия сайта
РусТехМаш
Готовые заводы для производства
бетона и газобетона 
+7 778 268 50 37 Звонок бесплатный
+7 778 268 50 37
Заказать звонок
E-mail
mail@rustehmash.com
Адрес
Астана
Режим работы
Пн. - Пт.: 8:00 - 20:00 Сб. - Вс.: Закрыто
Подать заявку
Главная
О заводе
  • Информация о заводе
  • Вакансии на заводе
  • Новости
  • География поставок
  • Сертификаты
  • Отзывы
  • Партнеры
Продукция
  • Газобетонное оборудование
    • Мини линии
    • Стационарные линии
    • Конвейерные линии СТ
    • Конвейерные линии с ЧПУ
    • Пено + газобетонн (МФЗ)
  • Скиповые бетонные заводы
    • Скип- 10Э- 1В (10 м3/час)
    • Скип- 25Э- 1В (25 м3/час)
    • Скип- 15- 2В (15 м3/час)
    • Скип- 30- 1В (30 м3/час)
    • Скип- 45- 2В (45 м3/час)
    • Скип- 60- 1В (60 м3/час)
    • Скип- 60- 2В (60 м3/час)
    • Скип- 90- 2В (90 м3/час)
  • Мобильные бетонные заводы
    • Мобил- 15- 1В (15 м3/час)
    • Мобил- 20- 1В (РО 2,8)
    • Мобил- 25- 2В (РО 2,8)
    • Мобил- 30- 1В (30 м3/час)
    • Мобил- 30- 2В (30 м3/час)
    • Мобил- 45- 2В (45 м3/час)
    • Мобил- 60- 2В (60 м3/час)
    • Мобил- 90- 2В (90 м3/час)
  • Ленточные бетонные заводы
    • Лента- 18 (18 м3/час)
    • Лента- 36 (36 м3/час)
    • Лента- 54 (54 м3/час)
    • Лента- 72 (72 м3/час)
    • Лента- 105 (105 м3/час)
    • Лента- 120 (120 м3/час)
    • Мобильные ленты (серия МТ)
  • Зимние бетонные заводы
    • Скип- 20- 1В (РО 2,8)
    • Скип- 25- 2В (РО 2,8)
    • Скип- 15- 2В (15 м3/час)
    • Скип- 30- 2В (30 м3/час)
    • Скип- 45- 2В (45 м3/час)
    • Скип- 60- 2В (60 м3/час)
    • Скип- 90- 2В (90 м3/час)
  • Мини мобильные бетонные заводы
    • Мобил- 20- 1В (20 м3/час)
    • Мобил 25- 2В (25 м3/час)
    • Мобил 45- 2В (45 м3/час)
  • Силосы цемента
    • Силос цемента СЦР- 35
    • Силос цемента СЦР- 50
    • Силос цемента СЦР- 75
    • Силос цемента СЦР- 100
    • Силос цемента СЦР- 120
    • Силос цемента СЦР- 140
    • Силос цемента СЦР- 160
  • Комплектующие
    • Бетоносмесители
    • Расстариватели БигБэгов
    • Шнековые конвейеры
    • Парогенераторы
Полезное
  • Проекты
  • Сервис
    • Документация
  • Фото
  • Экономика бизнеса
  • Вопрос-ответ
Отгрузки
Видео-отзывы
Цены
  • Бетонные заводы
  • Газобетонные заводы
  • Комплектующие к заводам
Контакты
Казахстан
Барнаул
Екатеринбург
Казань
Казахстан
Краснодар
Красноярск
Москва
Новосибирск
Санкт-Петербург
РусТехМаш
Готовые заводы для производства
бетона и газобетона 
Казахстан
Барнаул
Екатеринбург
Казань
Казахстан
Краснодар
Красноярск
Москва
Новосибирск
Санкт-Петербург
+7 778 268 50 37 Звонок бесплатный
+7 778 268 50 37
Заказать звонок
E-mail
mail@rustehmash.com
Адрес
Астана
Режим работы
Пн. - Пт.: 8:00 - 20:00 Сб. - Вс.: Закрыто
Подать заявку
Главная
О заводе
  • Информация о заводе
  • Вакансии на заводе
  • Новости
  • География поставок
  • Сертификаты
  • Отзывы
  • Партнеры
Продукция
  • Газобетонное оборудование
    Газобетонное оборудование
    • Мини линии
    • Стационарные линии
    • Конвейерные линии СТ
    • Конвейерные линии с ЧПУ
    • Пено + газобетонн (МФЗ)
  • Скиповые бетонные заводы
    Скиповые бетонные заводы
    • Скип- 10Э- 1В (10 м3/час)
    • Скип- 25Э- 1В (25 м3/час)
    • Скип- 15- 2В (15 м3/час)
    • Скип- 30- 1В (30 м3/час)
    • Скип- 45- 2В (45 м3/час)
    • Скип- 60- 1В (60 м3/час)
    • Скип- 60- 2В (60 м3/час)
    • Скип- 90- 2В (90 м3/час)
  • Мобильные бетонные заводы
    Мобильные бетонные заводы
    • Мобил- 15- 1В (15 м3/час)
    • Мобил- 20- 1В (РО 2,8)
    • Мобил- 25- 2В (РО 2,8)
    • Мобил- 30- 1В (30 м3/час)
    • Мобил- 30- 2В (30 м3/час)
    • Мобил- 45- 2В (45 м3/час)
    • Мобил- 60- 2В (60 м3/час)
    • Мобил- 90- 2В (90 м3/час)
  • Ленточные бетонные заводы
    Ленточные бетонные заводы
    • Лента- 18 (18 м3/час)
    • Лента- 36 (36 м3/час)
    • Лента- 54 (54 м3/час)
    • Лента- 72 (72 м3/час)
    • Лента- 105 (105 м3/час)
    • Лента- 120 (120 м3/час)
    • Мобильные ленты (серия МТ)
  • Зимние бетонные заводы
    Зимние бетонные заводы
    • Скип- 20- 1В (РО 2,8)
    • Скип- 25- 2В (РО 2,8)
    • Скип- 15- 2В (15 м3/час)
    • Скип- 30- 2В (30 м3/час)
    • Скип- 45- 2В (45 м3/час)
    • Скип- 60- 2В (60 м3/час)
    • Скип- 90- 2В (90 м3/час)
  • Мини мобильные бетонные заводы
    Мини мобильные бетонные заводы
    • Мобил- 20- 1В (20 м3/час)
    • Мобил 25- 2В (25 м3/час)
    • Мобил 45- 2В (45 м3/час)
  • Силосы цемента
    Силосы цемента
    • Силос цемента СЦР- 35
    • Силос цемента СЦР- 50
    • Силос цемента СЦР- 75
    • Силос цемента СЦР- 100
    • Силос цемента СЦР- 120
    • Силос цемента СЦР- 140
    • Силос цемента СЦР- 160
  • Комплектующие
    Комплектующие
    • Бетоносмесители
    • Расстариватели БигБэгов
    • Шнековые конвейеры
    • Парогенераторы
Полезное
  • Проекты
  • Сервис
    • Документация
  • Фото
  • Экономика бизнеса
  • Вопрос-ответ
Отгрузки
Видео-отзывы
Цены
  • Бетонные заводы
  • Газобетонные заводы
  • Комплектующие к заводам
Контакты
    РусТехМаш
    Главная
    О заводе
    • Информация о заводе
    • Вакансии на заводе
    • Новости
    • География поставок
    • Сертификаты
    • Отзывы
    • Партнеры
    Продукция
    • Газобетонное оборудование
      Газобетонное оборудование
      • Мини линии
      • Стационарные линии
      • Конвейерные линии СТ
      • Конвейерные линии с ЧПУ
      • Пено + газобетонн (МФЗ)
    • Скиповые бетонные заводы
      Скиповые бетонные заводы
      • Скип- 10Э- 1В (10 м3/час)
      • Скип- 25Э- 1В (25 м3/час)
      • Скип- 15- 2В (15 м3/час)
      • Скип- 30- 1В (30 м3/час)
      • Скип- 45- 2В (45 м3/час)
      • Скип- 60- 1В (60 м3/час)
      • Скип- 60- 2В (60 м3/час)
      • Скип- 90- 2В (90 м3/час)
    • Мобильные бетонные заводы
      Мобильные бетонные заводы
      • Мобил- 15- 1В (15 м3/час)
      • Мобил- 20- 1В (РО 2,8)
      • Мобил- 25- 2В (РО 2,8)
      • Мобил- 30- 1В (30 м3/час)
      • Мобил- 30- 2В (30 м3/час)
      • Мобил- 45- 2В (45 м3/час)
      • Мобил- 60- 2В (60 м3/час)
      • Мобил- 90- 2В (90 м3/час)
    • Ленточные бетонные заводы
      Ленточные бетонные заводы
      • Лента- 18 (18 м3/час)
      • Лента- 36 (36 м3/час)
      • Лента- 54 (54 м3/час)
      • Лента- 72 (72 м3/час)
      • Лента- 105 (105 м3/час)
      • Лента- 120 (120 м3/час)
      • Мобильные ленты (серия МТ)
    • Зимние бетонные заводы
      Зимние бетонные заводы
      • Скип- 20- 1В (РО 2,8)
      • Скип- 25- 2В (РО 2,8)
      • Скип- 15- 2В (15 м3/час)
      • Скип- 30- 2В (30 м3/час)
      • Скип- 45- 2В (45 м3/час)
      • Скип- 60- 2В (60 м3/час)
      • Скип- 90- 2В (90 м3/час)
    • Мини мобильные бетонные заводы
      Мини мобильные бетонные заводы
      • Мобил- 20- 1В (20 м3/час)
      • Мобил 25- 2В (25 м3/час)
      • Мобил 45- 2В (45 м3/час)
    • Силосы цемента
      Силосы цемента
      • Силос цемента СЦР- 35
      • Силос цемента СЦР- 50
      • Силос цемента СЦР- 75
      • Силос цемента СЦР- 100
      • Силос цемента СЦР- 120
      • Силос цемента СЦР- 140
      • Силос цемента СЦР- 160
    • Комплектующие
      Комплектующие
      • Бетоносмесители
      • Расстариватели БигБэгов
      • Шнековые конвейеры
      • Парогенераторы
    Полезное
    • Проекты
    • Сервис
      • Документация
    • Фото
    • Экономика бизнеса
    • Вопрос-ответ
    Отгрузки
    Видео-отзывы
    Цены
    • Бетонные заводы
    • Газобетонные заводы
    • Комплектующие к заводам
    Контакты
      Казахстан
      Барнаул
      Екатеринбург
      Казань
      Казахстан
      Краснодар
      Красноярск
      Москва
      Новосибирск
      Санкт-Петербург
      +7 778 268 50 37
      Заказать звонок
      E-mail
      mail@rustehmash.com
      Адрес
      Астана
      Режим работы
      Пн. - Пт.: 8:00 - 20:00 Сб. - Вс.: Закрыто
      Подать заявку
      РусТехМаш
      Телефоны
      +7 778 268 50 37
      Заказать звонок
      РусТехМаш
      • Главная
      • О заводе
        • О заводе
        • Информация о заводе
        • Вакансии на заводе
        • Новости
        • География поставок
        • Сертификаты
        • Отзывы
        • Партнеры
      • Продукция
        • Продукция
        • Газобетонное оборудование
          • Мини линии
          • Стационарные линии
          • Конвейерные линии СТ
          • Конвейерные линии с ЧПУ
          • Пено + газобетонн (МФЗ)
        • Скиповые бетонные заводы
          • Скип- 10Э- 1В (10 м3/час)
          • Скип- 25Э- 1В (25 м3/час)
          • Скип- 15- 2В (15 м3/час)
          • Скип- 30- 1В (30 м3/час)
          • Скип- 45- 2В (45 м3/час)
          • Скип- 60- 1В (60 м3/час)
          • Скип- 60- 2В (60 м3/час)
          • Скип- 90- 2В (90 м3/час)
        • Мобильные бетонные заводы
          • Мобил- 15- 1В (15 м3/час)
          • Мобил- 20- 1В (РО 2,8)
          • Мобил- 25- 2В (РО 2,8)
          • Мобил- 30- 1В (30 м3/час)
          • Мобил- 30- 2В (30 м3/час)
          • Мобил- 45- 2В (45 м3/час)
          • Мобил- 60- 2В (60 м3/час)
          • Мобил- 90- 2В (90 м3/час)
        • Ленточные бетонные заводы
          • Лента- 18 (18 м3/час)
          • Лента- 36 (36 м3/час)
          • Лента- 54 (54 м3/час)
          • Лента- 72 (72 м3/час)
          • Лента- 105 (105 м3/час)
          • Лента- 120 (120 м3/час)
          • Мобильные ленты (серия МТ)
        • Зимние бетонные заводы
          • Скип- 20- 1В (РО 2,8)
          • Скип- 25- 2В (РО 2,8)
          • Скип- 15- 2В (15 м3/час)
          • Скип- 30- 2В (30 м3/час)
          • Скип- 45- 2В (45 м3/час)
          • Скип- 60- 2В (60 м3/час)
          • Скип- 90- 2В (90 м3/час)
        • Мини мобильные бетонные заводы
          • Мобил- 20- 1В (20 м3/час)
          • Мобил 25- 2В (25 м3/час)
          • Мобил 45- 2В (45 м3/час)
        • Силосы цемента
          • Силос цемента СЦР- 35
          • Силос цемента СЦР- 50
          • Силос цемента СЦР- 75
          • Силос цемента СЦР- 100
          • Силос цемента СЦР- 120
          • Силос цемента СЦР- 140
          • Силос цемента СЦР- 160
        • Комплектующие
          • Бетоносмесители
          • Расстариватели БигБэгов
          • Шнековые конвейеры
          • Парогенераторы
      • Полезное
        • Полезное
        • Проекты
        • Сервис
          • Сервис
          • Документация
        • Фото
        • Экономика бизнеса
        • Вопрос-ответ
      • Отгрузки
      • Видео-отзывы
      • Цены
        • Цены
        • Бетонные заводы
        • Газобетонные заводы
        • Комплектующие к заводам
      • Контакты
      Подать заявку
      • Казахстан
        • Города
        • Барнаул
        • Екатеринбург
        • Казань
        • Казахстан
        • Краснодар
        • Красноярск
        • Москва
        • Новосибирск
        • Санкт-Петербург
      • +7 778 268 50 37
        • Телефоны
        • +7 778 268 50 37
        • Заказать звонок
      • Астана
      • mail@rustehmash.com
      • Пн. - Пт.: 8:00 - 20:00 Сб. - Вс.: Закрыто
      Главная
      —
      Продукция
      —
      Заводы по производству газобетона
      —
      Стационарные линии
      —РТМ - 10СП (10 м3/сутки)

      РТМ - 10СП (10 м3/сутки)

      • Фото
      • Видео
      • Видеоотзывы
      В наличии
      от 9 072 712 ₸
      от 1 587 600 ₽
      Производительность:
      до 10 м3/сутки
      Время монтажа:
      до 2 дней
      Гарантия два года
      Доставка по России и СНГ
      Продажа оборудования в лизинг
      Проведение пусконаладочных работ
      Запросить коммерческое предложение
      Ваша заявка отправлена!
      Заявка принята
      Спасибо!
      Ваше сообщение отправлено!
      Закрыть
      Герметизированные борта форм
      Каждый борт имеет резиновый уплотнитель. Это экономит время на сборке и производстве газобетона
      База рецептов
      Программа сохраняет до 300 рецептов, технолог может менять рецептуру в любой момент
      Работа по ГОСТУ
      Справочный центр 24/7
      Базовая комплектация
      Дополнительные опции
      Описание работ
      Схема и характеристики
      Базовая комплектация
      Самоходный смеситель- активатор 0,45 м3 - 1 шт.
      Объем смесителя: 450 литров
      Сливная заслонка (ручная), ДУ 100 мм
      Сливной шланг из ПВХ
      Смотровой люк для чистки смесителя
      Тип подшипникового узла вала: закрытый
      Покраска: грунт- эмаль в два слоя
      от 2 268 749 ₸
      Скиповый Подъемник до 1000 кг на 3 компонента с весовым терминалом и блоком управления подачи воды - 1 шт.
      Каркас из швеллера
      Скиповый бак
      Бак для воды
      Лебедка поднятия скипового бака
      Весовой датчик CAS (Ю. Корея)
      от 2 863 082 ₸
      Поддоны форм, утепленные (2,4*0,6*0,3 на 12 блоков) усиленные с металлическим дном 3 мм - 12 шт.
      Каркас из профильной трубы 80*40
      Листовой металл: 3 мм
      Покраска: грунт- эмаль в два слоя
      от 1 817 285 ₸
      Борта форм, утеплённые (2,4*0,6*0,3 на 12 блоков) с застежками и резиновым уплотнителем - 6 шт.
      Каркас из профильной трубы
      Листовой металл: 2 мм
      Количество эксцентриковых замков: 8 шт
      Герметизация: резиновый уплотнитель
      Покраска: грунт- эмаль в два слоя
      от 925 787 ₸
      Шаблон для резки с комплектом пил стационарной линии - 1 шт.
      Каркас из профильной трубы
      Деление реза, 100 мм
      Эксцентриковые замки, 4 шт
      Покраска: грунт- эмаль в два слоя
      от 377 172 ₸
      Рельсовые пути для самоходного смесителя - 14 шт.
      Сварная конструкция из швеллера
      Монтажные пластины
      от 392 031 ₸
      Смеситель для суспензии - 1 шт.
      Объём смесителя: 20 литров
      Сливной кран (бабочка), ДУ 20 мм
      Привод: электродвигатель
      Покраска: грунт- эмаль в два слоя
      от 428 605 ₸
      Дополнительные опции
      Пенетрометр
      Стойка
      Пружинный индикатор
      от 29 488 ₸
      Скребок для снятия горбушки
      Скребок для снятия горбушки
      Рамный каркас из профильной трубы
      Покраска: грунт- эмаль в два слоя
      от 58 290 ₸
      Сито для слива смеси в форму
      Рамный каркас из профильной трубы
      Сетка просеивания (металлическая, плетеная)
      Размер ячейки: 0,2 мм* 0,2 мм
      Покраска: грунт- эмаль в два слоя
      от 40 460 ₸
      Описание работ

      Стационарная линия неавтоклавного твердения с скиповым баком - это производственная линия, специально разработанная для производства газобетонной смеси с использованием скипового бака.

      Приемка и загрузка сырья: Начальный этап включает приемку основного сырья, такого как портландцемент, песок, каустическая сода, сульфат натрия, алюминиевая пудра. Сырье загружается в специальный скиповой бак в котором происходит взвешивание ингредиентов.

      Смешивание компонентов: Скиповой бак поднимается до места смешивания, где основные компоненты смеси сбрасываются в миксер или смеситель. Там они тщательно перемешиваются, обеспечивая равномерное распределение компонентов и формирование однородной газобетонной смеси.

      Дозирование воды: Происходит при помощи автоматического дозатора воды, с применением электромагнитного клапана и электрического счетчика воды.

      Слив смеси: После получения однородной смеси газобетонная смесь сливается в форму где происходит дальнейшее созревание газобетонного массива.

      Твердение блоков: Блоки из газобетона выдерживаются при комнатной температуре и определенной влажности в течение определенного времени, чтобы достичь неавтоклавного твердения. Этот процесс может занять от нескольких часов до двенадцати часов, в зависимости от требуемых характеристик блоков.

      Резка массива газобетона: Шаблон для распиловки массива газобетона (в сыром виде как пластилин), выполнен из профильных труб, шаг распиловки 100 мм, таким образом блоки можно нарезать шириной 100 мм, 200 мм, 300, мм, 400 мм. Высота стандартная, 300 мм.

      Высушивание и окончательная обработка: После завершения процесса твердения блоки могут быть дополнительно высушены и обработаны, чтобы достичь требуемой высокой прочности и качества.

      Стационарная линия неавтоклавного твердения с скиповым баком является эффективным и автоматизированным решением для производства газобетонной смеси. Она обеспечивает точное дозирование компонентов и регулировку процесса, что позволяет получить высококачественный газобетон для дальнейшего использования в строительстве.


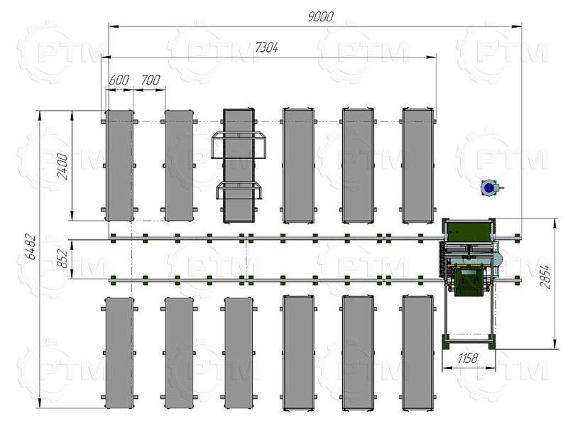
      Схема и характеристики
      Характеристики установки
      Необходимая площадь:
      128
      Мощность, кВт/час (380)
      7
      Обслуживающий персонал в смену:
      от 2 чел
      Вес завода, не более, кг
      2050
      Габариты помещения:
      12х8х4 (д*ш*в), метров
      Температура воды:
      50- 60 °C
      Температура в помещении:
      от 15 °C
      География поставок
      Посмотреть географию поставок
      О компании
      География поставок
      Подбор завода
      Цены
      Расчет окупаемости
      Видео-отзывы
      Сертификаты
      Новости
      Лизинг
      Заказать завод
      Контакты
      Бетонные заводы
      Растворо-бетонные узлы
      Мобильные бетонные заводы
      Бетоносмесительные установки
      Мини бетонные заводы
      Ленточные бетонные заводы
      Газобетонные заводы
      Мини заводы по производству газобетона
      Стационарные линии по производству газобетона
      Конвейерные линии по производству газобетона (струнные
      Конвейерные линии по производству газобетона (ЧПУ пилы
      Комплектующие
      Бетоносмесители
      Дозирующие комплексы
      Парогенераторы
      Силосы цемента
      Мини бетонные заводы
      Сервис
      Экономика бетона
      Запуск завода
      Модернизация РБУ
      +7 778 268 50 37 Звонок бесплатный
      +7 778 268 50 37
      Заказать звонок
      E-mail
      mail@rustehmash.com
      Адрес
      Астана
      Режим работы
      Пн. - Пт.: 8:00 - 20:00 Сб. - Вс.: Закрыто

      Заказать звонок
      mail@rustehmash.com
      Астана
      Пн. - Пт.: 8:00 - 20:00
      Сб. - Вс.: Закрыто
      Казахстан
      Барнаул
      Екатеринбург
      Казань
      Казахстан
      Краснодар
      Красноярск
      Москва
      Новосибирск
      Санкт-Петербург
      © 2026 ООО «РУСТЕХМАШ»
      Политика конфиденциальности